The Elm is a lovely 3 bedroom family home featuring a contemporary open plan kitchen/dining room, perfect for entertaining, with French doors opening to the patio area in the rear turfed garden.
The high specification kitchen by Ashley Ann includes a selection of Bosch appliances.
A separate lounge located to the front of the property creates a lovely space to relax and unwind.
Upstairs, the home features three bedrooms. Bedroom 1 benefits from a fitted wardrobe and en suite shower room. The family bathroom is also located on the first floor, which features a shower over the bath and fitted vanities to provide a sleek finish.
Floor plans
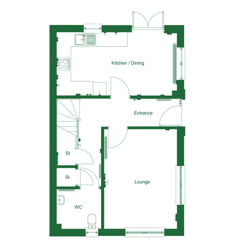
Ground Floor
| Room | Metric | Imperial |
|---|---|---|
| Lounge | 4.48m x 3.29m | 14'7" x 10'8" |
| Dining / Kitchen | 5.44m x 2.86m | 17'8" x 9'4" |
| Cloakroom | 2.02m x 1.80m | 6'6" x 5'9" |
First Floor
| Room | Metric | Imperial |
|---|---|---|
| Bedroom 1 | 3.23m x 3.10m | 10'6" x 10'2" |
| En Suite | 2.25m x 2.00m | 7'4" x 6'6" |
| Bedroom 2 | 3.16m x 2.60m | 10'4" x 8'5" |
| Bedroom 3 | 2.88m x 2.18m | 9'4" x 7'2" |
| Bathroom | 2.10m x 1.93m | 6'9" x 6'3" |
View on development plan
Features
- Open plan kitchen/dining room
- Quality Ashley Ann kitchen
- Selection of Bosch appliances
- French doors to rear turfed garden with patio
- Separate lounge
- En suite to bedroom 1
- Cloakroom/WC on ground floor
- High specification throughout
- Energy efficient air source heating
- 10 year NHBC warranty
Get in touch
Kylie Robertson
Sales Consultant
Fairview Heights, Waverley Road, off Earl's Gate, Slackbuie, Inverness, IV2 6JW
fairviewheights@tulloch-homes.com
Open Thursday to Monday 10:30am to 5pm.
Open by appointment on Tuesday and Wednesday - email fairviewheights@tulloch-homes.com to book.
Please note: All images, development plans and floor plans are for illustrative purposes only and measurements are intended as a guide. Offers and incentives are plot specific and development specific and may be amended or withdrawn at anytime. We make no guarantees about the tenure of any homes sold on each development and they are subject to change without consultation. Please speak to your Development Consultant if you require any further information.

